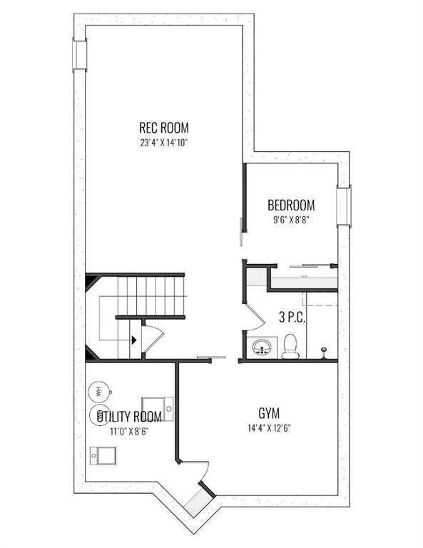
Step into a world of comfort in this remarkable two-story home that has been fully renovated from top to bottom. It stands as a true gem in the neighbourhood, offering exceptional quality and a captivating modern farmhouse aesthetic. What sets this property apart is not just the top-notch finishes and appliances, but its unbeatable value, priced well below replacement cost. Situated on a quiet street, it boasts a yard that backs a vast playing field with soccer nets, a baseball diamond, a playground, and a school, making it a haven for family fun and recreation. From the foyer, wide plank hardwood floors lead you to the open concept living, dining, and kitchen areas. The spacious living room features a vaulted ceiling, a cozy fireplace, and a modern chandelier, creating the perfect spot for relaxation and entertaining. A bright dining room bridges the living room and kitchen, making this floorpan ideal for gatherings. The kitchen is a culinary masterpiece with crisp white cabinets, brass hardware, quartz counters, floating display shelving, and wine storage. Premium Cafe appliances, including a 6-burner gas range, and speed oven/microwave, cater to the most discerning chefs. A flexible space that can serve as a den or office, with modern glass partitions is located down the hallway. Upstairs, the primary suite is a haven, featuring a vaulted ceiling, a built-in glam station, a spacious walk-in closet, and a spa-like ensuite with a freestanding soaker tub, double sinks, and a steam shower with a rain shower and handheld spray. Two additional bedrooms share a stylish Jack and Jill bathroom, and the convenience of upstairs laundry facilities adds to the family-friendly layout. The fully developed basement offers endless entertainment possibilities, with a gym, a fourth bedroom, a fourth bathroom, and a recreation room with a bar and wine fridges. An organized mudroom with ample storage keeps your living spaces tidy and efficient. Step outside into a low-maintenance outdoor paradise, featuring a pergola with fire tables and overhead gas heaters that extend the outdoor living season. A hot tub, multiple seating areas, a shed, and mature trees complete this enchanting backyard. An outdoor kitchen area makes alfresco dining and entertaining a breeze. This property is a rare find, offering unbeatable value, thoughtful design, and a perfect blend of modern luxury and farmhouse charm.